error 募集は終了しました

S-RESIDENCE新大阪WEST 704

大阪府 大阪市 淀川区西宮原2丁目5番23号
物件概要
初期費用目安
19.9万円
※目安金額通りにならない場合がありますので、必ずお問い合わせください。
【仲介手数料について】
  • ・家賃6万円以上:一律 3万円
  • ・家賃6万円未満:家賃の 0.5ヶ月分
家賃
7.15万円
共益費
1.3万円
敷金 / 礼金
なし / 1ヶ月
契約種別
普通賃貸借
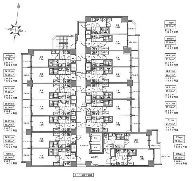
間取り
1K
面積
23.2㎡
交通
東海道本線 新大阪駅 徒歩13分 (駅地図)
大阪市御堂筋線 新大阪駅 徒歩13分 (駅地図)
阪急電鉄宝塚線 三国駅 徒歩10分 (駅地図)
築年数
2017-02
建物構造
RC
掲載日
2025年12月11日
設備・条件
温水洗浄便座 バス・トイレ別 シャワー 浴室乾燥機 高温差湯式 洗面所 洗面所独立 シャワー付洗面化粧台 システムキッチン ガスコンロ付 2口コンロ 収納スペース クローゼット シューズボックス エアコン 24時間換気システム BS端子 CS CATV 光ファイバー インターネット対応 インターネット使用料無料 洗濯機置場 室内洗濯機置場 全居室フローリング オートロック モニター付インターホン 防犯カメラ 火災報知器(報知器) 都市ガス 給湯 エレベーター エレベーター2基以上 宅配BOX 常時ゴミ出し可能 駐輪場有(無料) ペット相談 小型犬可 猫可
この物件を共有する
所在地