❮
サンハイム笹野 201
お気に入り
ログイン / 登録
arrow_drop_down
ユーザーとしてログイン
不動産仲介業者としてログイン
物件所有者としてログイン
サンハイム笹野 201
京都府 宇治市 五ケ庄梅林60-2
❮
❯
この物件を問い合わせる
物件概要
初期費用目安
8.4万円
※目安金額通りにならない場合がありますので、必ずお問い合わせください。
【仲介手数料について】
・家賃6万円以上:一律 3万円
・家賃6万円未満:家賃の 0.5ヶ月分
家賃
4.9万円
共益費
0.5万円
敷金 / 礼金
なし / なし
契約種別
普通賃貸借
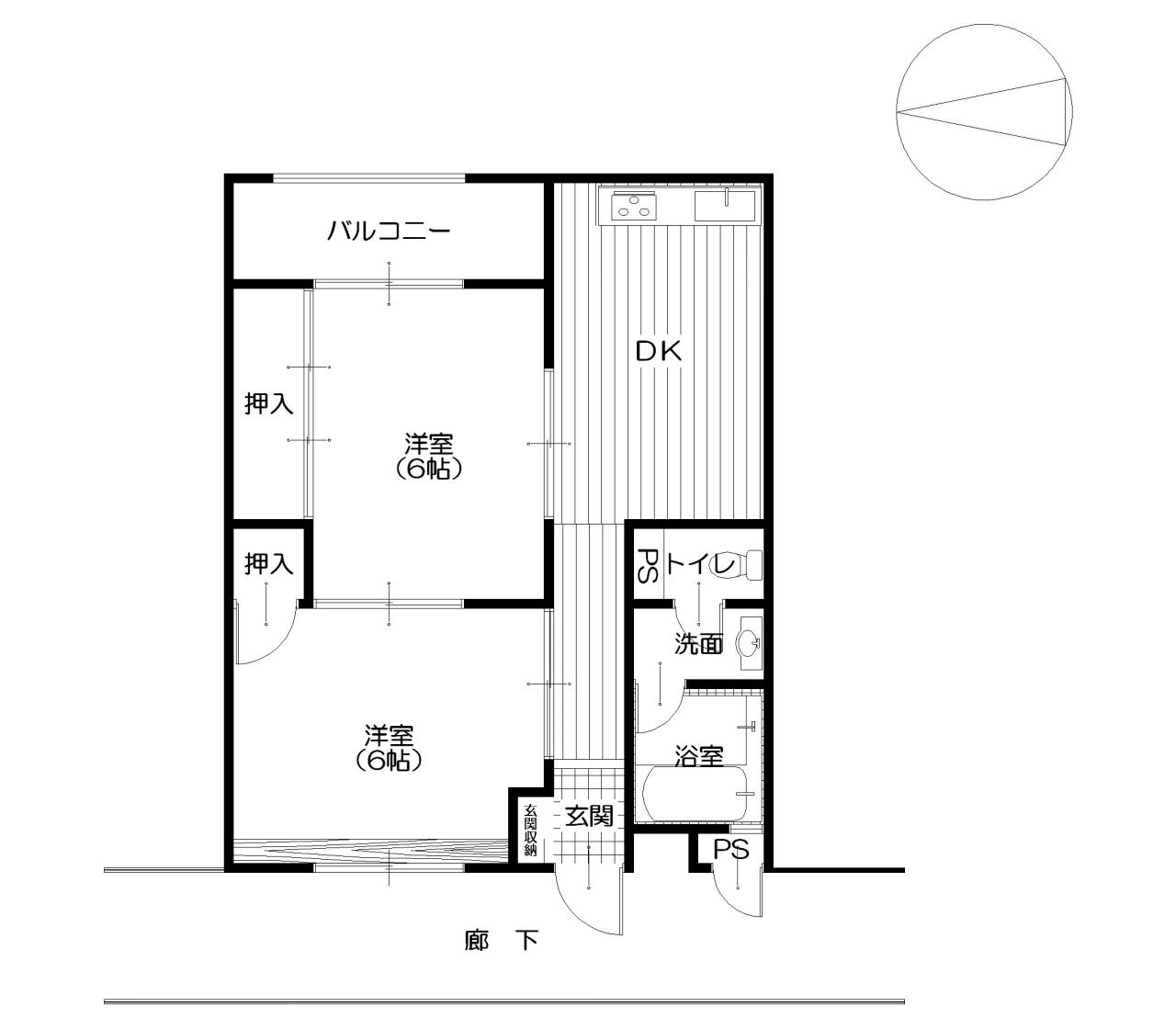
間取り
2DK
面積
45㎡
交通
京阪電気鉄道宇治線 黄檗駅 徒歩7分
(駅地図)
奈良線 黄檗駅 徒歩10分
(駅地図)
築年数
1975-07
建物構造
RC
掲載日
2025年12月23日
設備・条件
トイレ
バス・トイレ別
浴室に窓
洗面台
ガスコンロ可
キッチンに窓
プロパンガス
公営水道
駐輪場有(無料)
ペット不可
楽器不可
喫煙不可
保証人要
事務所使用不可
社宅可
この物件を問い合わせる
この物件を共有する
tab_inactive
URLコピー
Xで共有
LINEで送る
Instagram
所在地
物件へのお問い合わせ
キャンセル
送信 ➤