❮
メゾン山本 302
お気に入り
ログイン / 登録
arrow_drop_down
ユーザーとしてログイン
不動産仲介業者としてログイン
物件所有者としてログイン
メゾン山本 302
大阪府 岸和田市 磯上町4丁目4-5
❮
❯
この物件を問い合わせる
物件概要
初期費用目安
9万円
※目安金額通りにならない場合がありますので、必ずお問い合わせください。
【仲介手数料について】
・家賃6万円以上:一律 3万円
・家賃6万円未満:家賃の 0.5ヶ月分
家賃
6万円
共益費
なし
敷金 / 礼金
なし / なし
契約種別
普通賃貸借
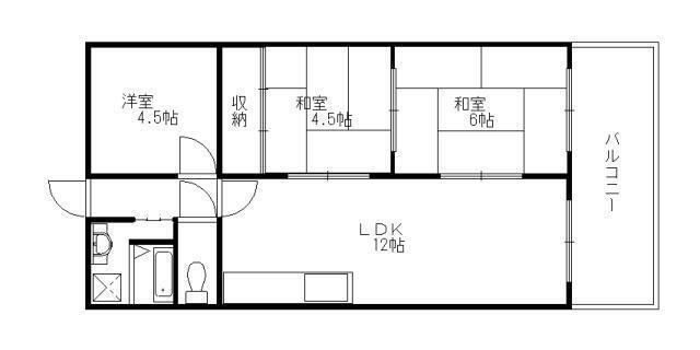
間取り
3LDK
面積
54.65㎡
交通
南海電鉄南海本線 忠岡駅 徒歩7分
南海電鉄南海本線 春木駅 徒歩17分
南海電鉄南海本線 泉大津駅 徒歩25分
築年数
1986-06
建物構造
RC
掲載日
2025年11月20日
設備・条件
トイレ
バス・トイレ別
シャワー
洗面所
洗面台
洗面所独立
ガスコンロ可
収納スペース
シューズボックス
洗濯機置場
室内洗濯機置場
フローリング
都市ガス
給湯
二人入居可
この物件を問い合わせる
この物件を共有する
tab_inactive
URLコピー
Xで共有
LINEで送る
Instagram
所在地
物件へのお問い合わせ
キャンセル
送信 ➤