❮
スカイマンション 108
お気に入り
ログイン / 登録
arrow_drop_down
ユーザーとしてログイン
不動産仲介業者としてログイン
物件所有者としてログイン
error
募集は終了しました
スカイマンション 108
神奈川県 綾瀬市 寺尾中3丁目1-26
❮
❯
この物件を問い合わせる
物件概要
初期費用目安
9.5万円
※目安金額通りにならない場合がありますので、必ずお問い合わせください。
【仲介手数料について】
・家賃6万円以上:一律 3万円
・家賃6万円未満:家賃の 0.5ヶ月分
家賃
6.2万円
共益費
0.3万円
敷金 / 礼金
なし / なし
契約種別
普通賃貸借
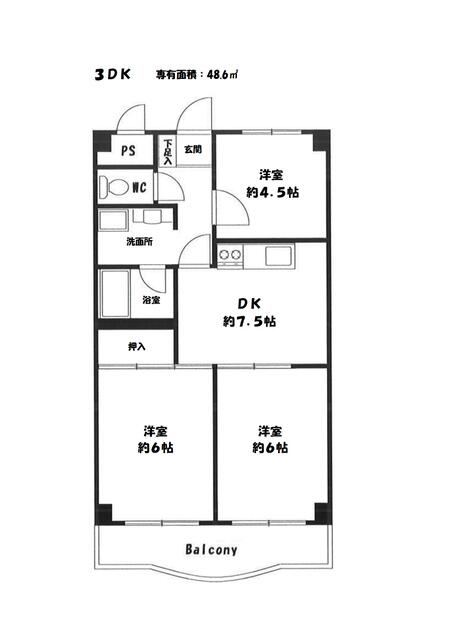
間取り
3DK
面積
48.6㎡
交通
相模鉄道本線 かしわ台駅 徒歩19分
相模鉄道本線 さがみ野駅 徒歩25分
築年数
1987-11
建物構造
RC
掲載日
2025年12月12日
設備・条件
トイレ
バス・トイレ別
シャワー
洗面所
洗面台
洗面所独立
シャワー付洗面化粧台
ガスコンロ可
収納スペース
エアコン
CATV
光ファイバー
洗濯機置場
室内洗濯機置場
モニター付インターホン
火災報知器(報知器)
プロパンガス
給湯
駐輪場有(無料)
バイク置場有(無料)
二人入居可
この物件を問い合わせる
この物件を共有する
tab_inactive
URLコピー
Xで共有
LINEで送る
Instagram
所在地
物件へのお問い合わせ
キャンセル
送信 ➤