❮
ドルフ東雪谷 301
お気に入り
ログイン / 登録
arrow_drop_down
ユーザーとしてログイン
不動産仲介業者としてログイン
物件所有者としてログイン
error
募集は終了しました
ドルフ東雪谷 301
東京都 大田区 東雪谷2丁目9-2
❮
❯
この物件を問い合わせる
物件概要
初期費用目安
19.6万円
※目安金額通りにならない場合がありますので、必ずお問い合わせください。
【仲介手数料について】
・家賃6万円以上:一律 3万円
・家賃6万円未満:家賃の 0.5ヶ月分
家賃
8.1万円
共益費
0.2万円
敷金 / 礼金
1ヶ月 / なし
契約種別
普通賃貸借
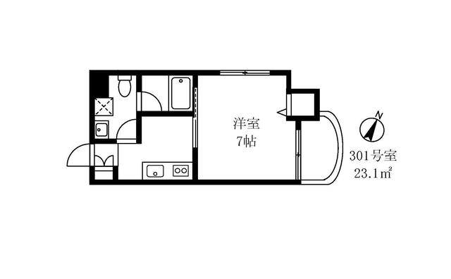
間取り
1K
面積
23.1㎡
交通
東急池上線 石川台駅 徒歩3分
東急池上線 雪が谷大塚駅 徒歩7分
東急池上線 洗足池駅 徒歩10分
築年数
1996-12
建物構造
RC
掲載日
2025年11月29日
設備・条件
トイレ
バス・トイレ別
シャワー
洗面所
洗面台
洗面所独立
システムキッチン
ガスコンロ付
2口コンロ
収納スペース
シューズボックス
冷房
エアコン
暖房
洗濯機置場
室内洗濯機置場
フローリング
オートロック
角部屋
都市ガス
給湯
エレベーター
この物件を問い合わせる
この物件を共有する
tab_inactive
URLコピー
Xで共有
LINEで送る
Instagram
所在地
物件へのお問い合わせ
キャンセル
送信 ➤