❮
ジュリアス綾瀬 101
お気に入り
ログイン / 登録
arrow_drop_down
ユーザーとしてログイン
不動産仲介業者としてログイン
物件所有者としてログイン
ジュリアス綾瀬 101
東京都 足立区 東綾瀬1丁目23-8
❮
❯
この物件を問い合わせる
物件概要
初期費用目安
201万円
※目安金額通りにならない場合がありますので、必ずお問い合わせください。
【仲介手数料について】
・家賃6万円以上:一律 3万円
・家賃6万円未満:家賃の 0.5ヶ月分
家賃
38.5万円
共益費
1.1万円
敷金 / 礼金
1ヶ月 / 3ヶ月
契約種別
定期借家
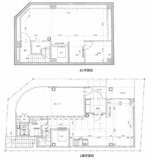
間取り
1LDK
面積
97.2㎡
交通
千代田・常磐緩行線 綾瀬駅 徒歩8分
東京地下鉄千代田線 綾瀬駅 徒歩8分
築年数
1997-11
建物構造
RC
掲載日
2025年12月23日
設備・条件
トイレ
温水洗浄便座
バス・トイレ別
シャワー
シャワールーム
洗面所
洗面台
洗面所独立
システムキッチン
2口コンロ
IHクッキングヒーター
シューズボックス
エアコン
インターネット使用料無料
洗濯機置場
室内洗濯機置場
照明器具
家電付
冷蔵庫
家具付き
角部屋
都市ガス
給湯
事務所使用可
SOHO可
この物件を問い合わせる
この物件を共有する
tab_inactive
URLコピー
Xで共有
LINEで送る
Instagram
所在地
物件へのお問い合わせ
キャンセル
送信 ➤