❮
アドバンス神戸アルティス 402
お気に入り
ログイン / 登録
arrow_drop_down
ユーザーとしてログイン
不動産仲介業者としてログイン
物件所有者としてログイン
error
募集は終了しました
アドバンス神戸アルティス 402
兵庫県 神戸市 中央区北長狭通8丁目1-4
❮
❯
この物件を問い合わせる
物件概要
初期費用目安
18.2万円
※目安金額通りにならない場合がありますので、必ずお問い合わせください。
【仲介手数料について】
・家賃6万円以上:一律 3万円
・家賃6万円未満:家賃の 0.5ヶ月分
家賃
6.61万円
共益費
0.99万円
敷金 / 礼金
なし / 1ヶ月
契約種別
普通賃貸借
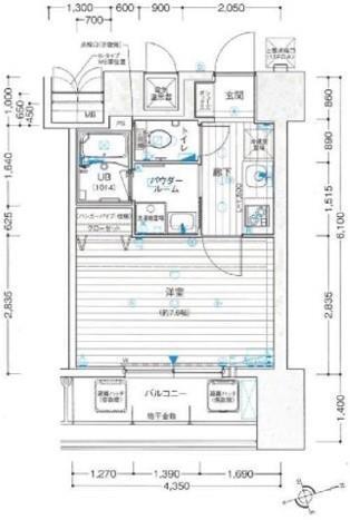
間取り
1K
面積
26.05㎡
交通
神戸高速鉄道東西線 西元町駅 徒歩4分
(駅地図)
神戸市西神山手線 大倉山駅 徒歩7分
(駅地図)
神戸高速鉄道東西線 花隈駅 徒歩7分
(駅地図)
築年数
2014-08
建物構造
RC
掲載日
2026年1月8日
設備・条件
バス・トイレ別
浴室乾燥機
洗面所独立
シャワー付洗面化粧台
システムキッチン
IHクッキングヒーター
収納スペース
シューズボックス
モニター付インターホン
駐輪場有
バイク置場有
この物件を問い合わせる
この物件を共有する
tab_inactive
URLコピー
Xで共有
LINEで送る
Instagram
所在地
物件へのお問い合わせ
キャンセル
送信 ➤