❮
八王子レジデンス 1103
お気に入り
ログイン / 登録
arrow_drop_down
ユーザーとしてログイン
不動産仲介業者としてログイン
物件所有者としてログイン
八王子レジデンス 1103
東京都 八王子市 八日町
❮
❯
この物件を問い合わせる
物件概要
初期費用目安
28.4万円
※目安金額通りにならない場合がありますので、必ずお問い合わせください。
【仲介手数料について】
・家賃6万円以上:一律 3万円
・家賃6万円未満:家賃の 0.5ヶ月分
家賃
24.4万円
共益費
1万円
敷金 / 礼金
なし / なし
契約種別
普通賃貸借
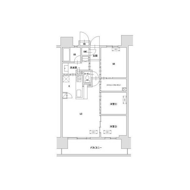
間取り
2LDK
面積
68.25㎡
交通
中央本線 八王子駅 徒歩9分
横浜線 八王子駅 徒歩9分
築年数
2024-11
建物構造
RC
掲載日
2025年11月28日
設備・条件
温水洗浄便座
バス・トイレ別
追焚機能
浴室乾燥機
洗面台
クローゼット
エアコン
床暖房
24時間換気システム
インターネット使用料無料
洗濯機置場
フローリング
オートロック
モニター付インターホン
ダブルロックドア
防犯カメラ
エレベーター
宅配BOX
この物件を問い合わせる
この物件を共有する
tab_inactive
URLコピー
Xで共有
LINEで送る
Instagram
所在地
物件へのお問い合わせ
キャンセル
送信 ➤