❮
CCR2010 112
お気に入り
ログイン / 登録
arrow_drop_down
ユーザーとしてログイン
不動産仲介業者としてログイン
物件所有者としてログイン
error
募集は終了しました
CCR2010 112
宮城県 石巻市 開北4丁目7-26
❮
❯
この物件を問い合わせる
物件概要
初期費用目安
9.7万円
※目安金額通りにならない場合がありますので、必ずお問い合わせください。
【仲介手数料について】
・家賃6万円以上:一律 3万円
・家賃6万円未満:家賃の 0.5ヶ月分
家賃
6.7万円
共益費
なし
敷金 / 礼金
なし / なし
契約種別
普通賃貸借
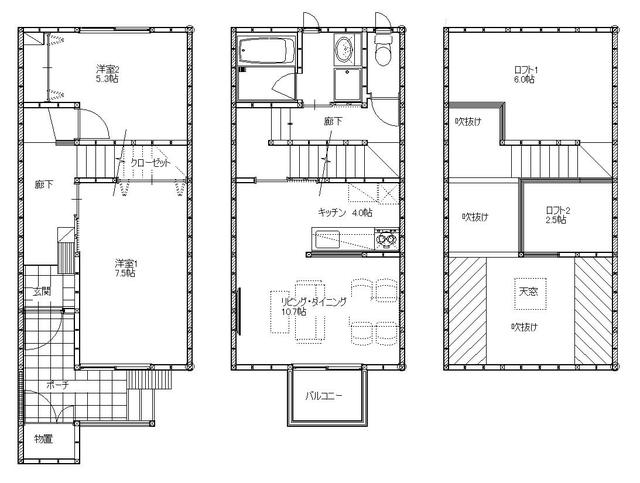
間取り
2LDK
面積
66.45㎡
交通
仙石線 石巻駅 徒歩24分
石巻線 石巻駅 徒歩24分
築年数
2010-03
建物構造
木造
掲載日
2025年12月12日
設備・条件
温水洗浄便座
バス・トイレ別
追焚機能
洗面所独立
シャワー付洗面化粧台
カウンターキッチン
ガスコンロ可
収納スペース
トランクルーム
クローゼット
シューズボックス
エアコン
CS
光ファイバー
インターネット対応
室内洗濯機置場
フローリング
ロフト
モニター付インターホン
角部屋
プロパンガス
プロパンガス給湯
この物件を問い合わせる
この物件を共有する
tab_inactive
URLコピー
Xで共有
LINEで送る
Instagram
所在地
物件へのお問い合わせ
キャンセル
送信 ➤