❮
マンションミワⅠ 202
お気に入り
ログイン / 登録
arrow_drop_down
ユーザーとしてログイン
不動産仲介業者としてログイン
物件所有者としてログイン
マンションミワⅠ 202
大阪府 岸和田市 下池田町1丁目4-14
❮
❯
この物件を問い合わせる
物件概要
初期費用目安
9.8万円
※目安金額通りにならない場合がありますので、必ずお問い合わせください。
【仲介手数料について】
・家賃6万円以上:一律 3万円
・家賃6万円未満:家賃の 0.5ヶ月分
家賃
6.2万円
共益費
0.6万円
敷金 / 礼金
なし / なし
契約種別
普通賃貸借
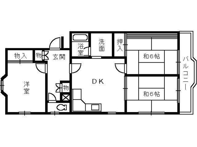
間取り
2LDK
面積
64.22㎡
交通
阪和線 久米田駅 徒歩11分
南海電鉄南海本線 春木駅 徒歩18分
阪和線 下松駅 徒歩26分
築年数
1990-08
建物構造
RC
掲載日
2025年12月22日
設備・条件
バス・トイレ別
追焚機能
シャワー
洗面所独立
システムキッチン
ガスコンロ可
フローリング
都市ガス
駐輪場有
バイク置場有
この物件を問い合わせる
この物件を共有する
tab_inactive
URLコピー
Xで共有
LINEで送る
Instagram
所在地
物件へのお問い合わせ
キャンセル
送信 ➤