❮
S-RESIDENCE福島玉川Uno 1201
お気に入り
ログイン / 登録
arrow_drop_down
ユーザーとしてログイン
不動産仲介業者としてログイン
物件所有者としてログイン
error
募集は終了しました
S-RESIDENCE福島玉川Uno 1201
大阪府 大阪市 福島区玉川4丁目10番25号
❮
❯
この物件を問い合わせる
物件概要
初期費用目安
28万円
※目安金額通りにならない場合がありますので、必ずお問い合わせください。
【仲介手数料について】
・家賃6万円以上:一律 3万円
・家賃6万円未満:家賃の 0.5ヶ月分
家賃
11.5万円
共益費
1万円
敷金 / 礼金
なし / 1ヶ月
契約種別
普通賃貸借
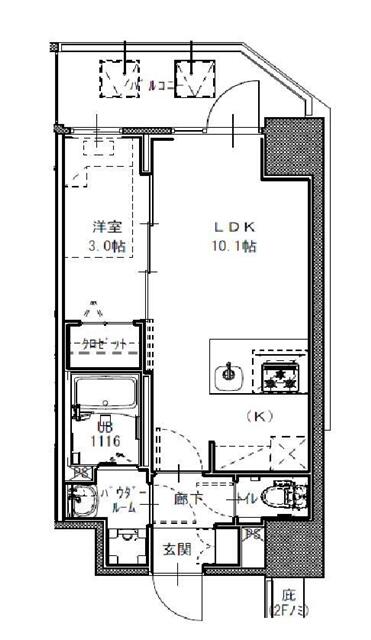
間取り
1LDK
面積
32.01㎡
交通
大阪市千日前線 玉川駅 徒歩4分
(駅地図)
阪神電鉄本線 野田駅 徒歩6分
(駅地図)
大阪環状線 野田駅 徒歩6分
(駅地図)
築年数
2023-07
建物構造
RC
掲載日
2025年11月18日
設備・条件
トイレ
温水洗浄便座
バス・トイレ別
シャワー
浴室乾燥機
洗面所
洗面台
洗面所独立
シャワー付洗面化粧台
システムキッチン
ガスコンロ付
収納スペース
クローゼット
シューズボックス
エアコン
光ファイバー
インターネット対応
インターネット使用料無料
洗濯機置場
室内洗濯機置場
オートロック
ダブルロックドア
ディンプルキー
防犯カメラ
都市ガス
給湯
都市ガス給湯
宅配BOX
駐輪場有
ペット相談
小型犬可
猫可
二人入居可
この物件を問い合わせる
この物件を共有する
tab_inactive
URLコピー
Xで共有
LINEで送る
Instagram
所在地
物件へのお問い合わせ
キャンセル
送信 ➤