❮
(仮称)国母APPJ 101
お気に入り
ログイン / 登録
arrow_drop_down
ユーザーとしてログイン
不動産仲介業者としてログイン
物件所有者としてログイン
(仮称)国母APPJ 101
山梨県 甲府市 国母4丁目8-35
❮
❯
この物件を問い合わせる
物件概要
初期費用目安
35.4万円
※目安金額通りにならない場合がありますので、必ずお問い合わせください。
【仲介手数料について】
・家賃6万円以上:一律 3万円
・家賃6万円未満:家賃の 0.5ヶ月分
家賃
10.3万円
共益費
0.5万円
敷金 / 礼金
1ヶ月 / 1ヶ月
契約種別
普通賃貸借
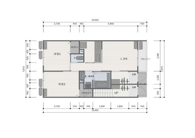
間取り
2LDK
面積
51.13㎡
交通
身延線 甲斐住吉駅 徒歩20分
築年数
2026-03
建物構造
木造
掲載日
2025年11月16日
設備・条件
温水洗浄便座
バス・トイレ別
シャワー
洗面所
洗面台
収納スペース
クローゼット
シューズインクローゼット
エアコン
CATV
インターネット使用料無料
室内洗濯機置場
室内物干し
モニター付インターホン
防犯カメラ
火災報知器(報知器)
プロパンガス
宅配BOX
この物件を問い合わせる
この物件を共有する
tab_inactive
URLコピー
Xで共有
LINEで送る
Instagram
所在地
物件へのお問い合わせ
キャンセル
送信 ➤