❮
リヴシティ西川口参番館 304
お気に入り
ログイン / 登録
arrow_drop_down
ユーザーとしてログイン
不動産仲介業者としてログイン
物件所有者としてログイン
error
募集は終了しました
リヴシティ西川口参番館 304
埼玉県 川口市 西川口1丁目4-23
❮
❯
この物件を問い合わせる
物件概要
初期費用目安
20万円
※目安金額通りにならない場合がありますので、必ずお問い合わせください。
【仲介手数料について】
・家賃6万円以上:一律 3万円
・家賃6万円未満:家賃の 0.5ヶ月分
家賃
7.5万円
共益費
1万円
敷金 / 礼金
なし / 1ヶ月
契約種別
普通賃貸借
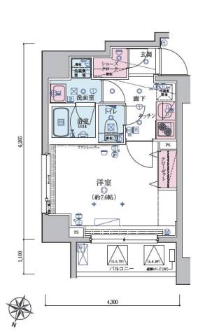
間取り
1K
面積
25.74㎡
交通
京浜東北・根岸線 西川口駅 徒歩2分
(駅地図)
埼京線 戸田公園駅 徒歩37分
(駅地図)
京浜東北・根岸線 川口駅 徒歩26分
(駅地図)
築年数
2019-11
建物構造
RC
掲載日
2025年10月10日
設備・条件
トイレ
温水洗浄便座
バス・トイレ別
シャワー
浴室乾燥機
洗面所
洗面台
洗面所独立
システムキッチン
ガスコンロ付
2口コンロ
収納スペース
クローゼット
シューズボックス
エアコン
BS端子
CS
インターネット使用料無料
洗濯機置場
室内洗濯機置場
フローリング
オートロック
モニター付インターホン
カードキー
防犯カメラ
角部屋
都市ガス
給湯
エレベーター
宅配BOX
常時ゴミ出し可能
駐輪場有
バイク置場有
ペット相談
小型犬可
猫可
二人入居可
この物件を問い合わせる
この物件を共有する
tab_inactive
URLコピー
Xで共有
LINEで送る
Instagram
所在地
物件へのお問い合わせ
キャンセル
送信 ➤