❮
S-RESIDENCE横濱阪東橋 202
お気に入り
ログイン / 登録
arrow_drop_down
ユーザーとしてログイン
不動産仲介業者としてログイン
物件所有者としてログイン
S-RESIDENCE横濱阪東橋 202
神奈川県 横浜市 南区浦舟町5丁目73-6
❮
❯
この物件を問い合わせる
物件概要
初期費用目安
11.8万円
※目安金額通りにならない場合がありますので、必ずお問い合わせください。
【仲介手数料について】
・家賃6万円以上:一律 3万円
・家賃6万円未満:家賃の 0.5ヶ月分
家賃
7.8万円
共益費
1万円
敷金 / 礼金
なし / なし
契約種別
普通賃貸借
間取り
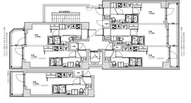
1K
面積
20.52㎡
交通
築年数
2023-01
建物構造
RC
掲載日
2026年3月18日
設備・条件
トイレ
温水洗浄便座
バス・トイレ別
シャワー
浴室乾燥機
洗面台
ガスコンロ付
2口コンロ
エアコン
オートロック
モニター付インターホン
駐輪場有
バイク置場有
この物件を問い合わせる
この物件を共有する
tab_inactive
URLコピー
Xで共有
LINEで送る
Instagram
所在地
物件へのお問い合わせ
キャンセル
送信 ➤