❮
ルミナス 103
お気に入り
ログイン / 登録
arrow_drop_down
ユーザーとしてログイン
不動産仲介業者としてログイン
物件所有者としてログイン
error
募集は終了しました
ルミナス 103
神奈川県 川崎市 川崎区大島4丁目23-3
❮
❯
この物件を問い合わせる
物件概要
初期費用目安
36.8万円
※目安金額通りにならない場合がありますので、必ずお問い合わせください。
【仲介手数料について】
・家賃6万円以上:一律 3万円
・家賃6万円未満:家賃の 0.5ヶ月分
家賃
16.5万円
共益費
0.4万円
敷金 / 礼金
1ヶ月 / なし
契約種別
普通賃貸借
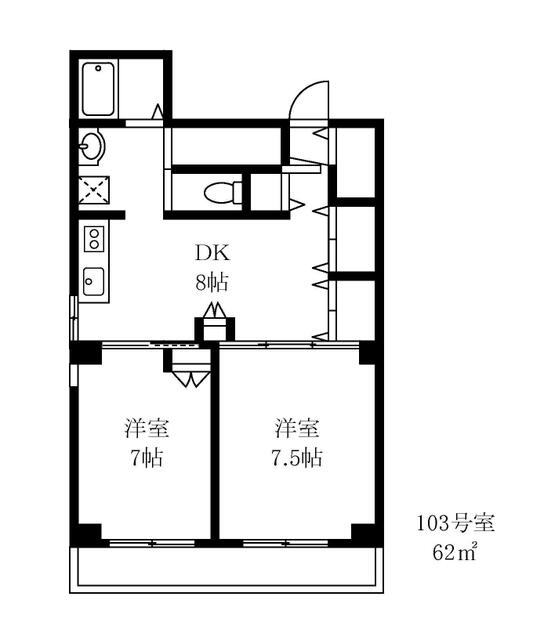
間取り
2DK
面積
62㎡
交通
南武線 小田栄駅 徒歩18分
京浜急行電鉄大師線 港町駅 徒歩21分
南武線 浜川崎駅 徒歩21分
築年数
2020-03
建物構造
鉄骨造
掲載日
2025年11月17日
設備・条件
トイレ
温水洗浄便座
バス・トイレ別
追焚機能
シャワー
浴室乾燥機
洗面所
洗面台
洗面所独立
システムキッチン
ガスコンロ付
収納スペース
クローゼット
シューズボックス
冷房
エアコン
暖房
洗濯機置場
室内洗濯機置場
オートロック
モニター付インターホン
角部屋
都市ガス
給湯
駐輪場有(月額 600円)
バイク置場有(月額 3,060円)
この物件を問い合わせる
この物件を共有する
tab_inactive
URLコピー
Xで共有
LINEで送る
Instagram
所在地
物件へのお問い合わせ
キャンセル
送信 ➤