❮
S-RESIDENCE堺筋本町Deux 807
お気に入り
ログイン / 登録
arrow_drop_down
ユーザーとしてログイン
不動産仲介業者としてログイン
物件所有者としてログイン
error
募集は終了しました
S-RESIDENCE堺筋本町Deux 807
大阪府 大阪市 中央区南久宝寺町1丁目7番8号
❮
❯
この物件を問い合わせる
物件概要
初期費用目安
21.2万円
※目安金額通りにならない場合がありますので、必ずお問い合わせください。
【仲介手数料について】
・家賃6万円以上:一律 3万円
・家賃6万円未満:家賃の 0.5ヶ月分
家賃
8.1万円
共益費
1万円
敷金 / 礼金
なし / 1ヶ月
契約種別
普通賃貸借
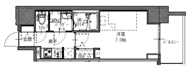
間取り
1K
面積
22.99㎡
交通
大阪市中央線 堺筋本町駅 徒歩5分
(駅地図)
大阪市堺筋線 堺筋本町駅 徒歩5分
(駅地図)
築年数
2023-05
建物構造
RC
掲載日
2025年11月26日
設備・条件
トイレ
温水洗浄便座
バス・トイレ別
シャワー
浴室乾燥機
洗面所
洗面台
洗面所独立
シャワー付洗面化粧台
システムキッチン
ガスコンロ付
2口コンロ
収納スペース
クローゼット
シューズボックス
エアコン
光ファイバー
インターネット対応
インターネット使用料無料
洗濯機置場
室内洗濯機置場
オートロック
ダブルロックドア
ディンプルキー
防犯カメラ
24時間セキュリティ
火災報知器(報知器)
角部屋
都市ガス
給湯
宅配BOX
この物件を問い合わせる
この物件を共有する
tab_inactive
URLコピー
Xで共有
LINEで送る
Instagram
所在地
物件へのお問い合わせ
キャンセル
送信 ➤