❮
スカイコート学芸大学 103
お気に入り
ログイン / 登録
arrow_drop_down
ユーザーとしてログイン
不動産仲介業者としてログイン
物件所有者としてログイン
error
募集は終了しました
スカイコート学芸大学 103
東京都 目黒区 碑文谷5丁目5-19
❮
❯
この物件を問い合わせる
物件概要
初期費用目安
18.3万円
※目安金額通りにならない場合がありますので、必ずお問い合わせください。
【仲介手数料について】
・家賃6万円以上:一律 3万円
・家賃6万円未満:家賃の 0.5ヶ月分
家賃
7万円
共益費
0.65万円
敷金 / 礼金
1ヶ月 / なし
契約種別
普通賃貸借
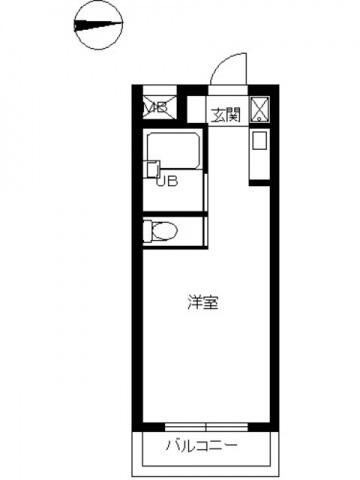
間取り
ワンルーム
面積
19.32㎡
交通
東急東横線 学芸大学駅 徒歩8分
(駅地図)
東急東横線 都立大学駅 徒歩14分
(駅地図)
東急大井町線 大岡山駅 徒歩26分
(駅地図)
築年数
1997-02
建物構造
RC
掲載日
2026年1月3日
設備・条件
バス・トイレ別
システムキッチン
IHクッキングヒーター
シューズボックス
エアコン
BS端子
CATV
光ファイバー
室内洗濯機置場
フローリング
オートロック
角部屋
都市ガス
給湯
常時ゴミ出し可能
駐輪場有
この物件を問い合わせる
この物件を共有する
tab_inactive
URLコピー
Xで共有
LINEで送る
Instagram
所在地
物件へのお問い合わせ
キャンセル
送信 ➤