❮
D.フラットⅡ 201号室
お気に入り
ログイン / 登録
arrow_drop_down
ユーザーとしてログイン
不動産仲介業者としてログイン
物件所有者としてログイン
error
募集は終了しました
D.フラットⅡ 201号室
大分県 別府市 上人南3組
❮
❯
この物件を問い合わせる
物件概要
初期費用目安
10.4万円
※目安金額通りにならない場合がありますので、必ずお問い合わせください。
【仲介手数料について】
・家賃6万円以上:一律 3万円
・家賃6万円未満:家賃の 0.5ヶ月分
家賃
3.5万円
共益費
0.2万円
敷金 / 礼金
1ヶ月 / なし
契約種別
普通賃貸借
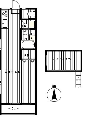
間取り
1SK
面積
26.46㎡
交通
日豊本線 別府大学駅 徒歩2分
(駅地図)
築年数
2002-07
建物構造
木造
掲載日
2025年11月18日
設備・条件
温水洗浄便座
バス・トイレ別
シャワー
ガスコンロ付
2口コンロ
収納スペース
床下収納
エアコン
CATV
CATVインターネット
インターネット使用料無料
室内洗濯機置場
室内物干し
フローリング
ロフト
照明器具
ダウンライト
モニター付インターホン
ディンプルキー
角部屋
最上階
プロパンガス
給湯
プロパンガス給湯
事務所使用可
SOHO可
この物件を問い合わせる
この物件を共有する
tab_inactive
URLコピー
Xで共有
LINEで送る
Instagram
所在地
物件へのお問い合わせ
キャンセル
送信 ➤