❮
プレベール 305
お気に入り
ログイン / 登録
arrow_drop_down
ユーザーとしてログイン
不動産仲介業者としてログイン
物件所有者としてログイン
プレベール 305
宮城県 仙台市 泉区七北田字駕籠沢147
❮
❯
この物件を問い合わせる
物件概要
初期費用目安
15.38万円
※目安金額通りにならない場合がありますので、必ずお問い合わせください。
【仲介手数料について】
・家賃6万円以上:一律 3万円
・家賃6万円未満:家賃の 0.5ヶ月分
家賃
4.7万円
共益費
0.25万円
敷金 / 礼金
1ヶ月 / 0.5ヶ月
契約種別
普通賃貸借
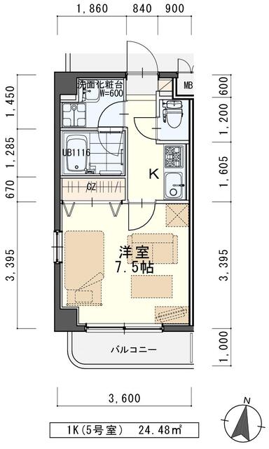
間取り
1K
面積
24.48㎡
交通
仙台市地下鉄南北線 泉中央駅 徒歩12分
(駅地図)
築年数
2000-01
建物構造
RC
掲載日
2026年1月3日
設備・条件
トイレ
温水洗浄便座
バス・トイレ別
シャワー
洗面所
洗面台
洗面所独立
システムキッチン
ガスコンロ付
2口コンロ
グリル
クローゼット
エアコン
BS端子
室内洗濯機置場
フローリング
照明器具
モニター付インターホン
角部屋
最上階
プロパンガス
給湯
駐輪場有(無料)
喫煙不可
この物件を問い合わせる
この物件を共有する
tab_inactive
URLコピー
Xで共有
LINEで送る
Instagram
所在地
物件へのお問い合わせ
キャンセル
送信 ➤