❮
サムティ京橋Clear 1101
お気に入り
ログイン / 登録
arrow_drop_down
ユーザーとしてログイン
不動産仲介業者としてログイン
物件所有者としてログイン
error
募集は終了しました
サムティ京橋Clear 1101
大阪府 大阪市 都島区東野田町1丁目20番18号
❮
❯
この物件を問い合わせる
物件概要
初期費用目安
28万円
※目安金額通りにならない場合がありますので、必ずお問い合わせください。
【仲介手数料について】
・家賃6万円以上:一律 3万円
・家賃6万円未満:家賃の 0.5ヶ月分
家賃
11.1万円
共益費
1.4万円
敷金 / 礼金
なし / 1ヶ月
契約種別
普通賃貸借
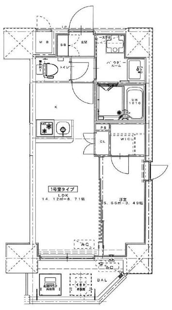
間取り
1LDK
面積
30.97㎡
交通
JR東西線 京橋駅 徒歩6分
(駅地図)
大阪環状線 京橋駅 徒歩6分
(駅地図)
築年数
2022-01
建物構造
RC
掲載日
2025年12月12日
設備・条件
温水洗浄便座
浴室乾燥機
ガスコンロ付
2口コンロ
エアコン
BS端子
CS
インターネット対応
インターネット使用料無料
オートロック
角部屋
エレベーター
駐輪場有(無料)
ペット相談
この物件を問い合わせる
この物件を共有する
tab_inactive
URLコピー
Xで共有
LINEで送る
Instagram
所在地
物件へのお問い合わせ
キャンセル
送信 ➤