❮
スターバレー 202
お気に入り
ログイン / 登録
arrow_drop_down
ユーザーとしてログイン
不動産仲介業者としてログイン
物件所有者としてログイン
error
募集は終了しました
スターバレー 202
神奈川県 横浜市 都筑区仲町台1丁目18-21
❮
❯
この物件を問い合わせる
物件概要
初期費用目安
24.3万円
※目安金額通りにならない場合がありますので、必ずお問い合わせください。
【仲介手数料について】
・家賃6万円以上:一律 3万円
・家賃6万円未満:家賃の 0.5ヶ月分
家賃
6.7万円
共益費
0.4万円
敷金 / 礼金
1ヶ月 / 1ヶ月
契約種別
普通賃貸借
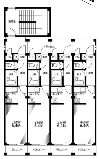
間取り
ワンルーム
面積
23.44㎡
交通
築年数
2006-05
建物構造
鉄骨造
掲載日
2025年12月2日
設備・条件
トイレ
バス・トイレ別
シャワー
洗面台
IHクッキングヒーター
エアコン
フローリング
オートロック
モニター付インターホン
都市ガス
この物件を問い合わせる
この物件を共有する
tab_inactive
URLコピー
Xで共有
LINEで送る
Instagram
所在地
物件へのお問い合わせ
キャンセル
送信 ➤