❮
CROWN CORPOⅠ 201
お気に入り
ログイン / 登録
arrow_drop_down
ユーザーとしてログイン
不動産仲介業者としてログイン
物件所有者としてログイン
CROWN CORPOⅠ 201
茨城県 古河市 上辺見1032-8
❮
❯
この物件を問い合わせる
物件概要
初期費用目安
8.2万円
※目安金額通りにならない場合がありますので、必ずお問い合わせください。
【仲介手数料について】
・家賃6万円以上:一律 3万円
・家賃6万円未満:家賃の 0.5ヶ月分
家賃
4.9万円
共益費
0.3万円
敷金 / 礼金
なし / なし
契約種別
普通賃貸借
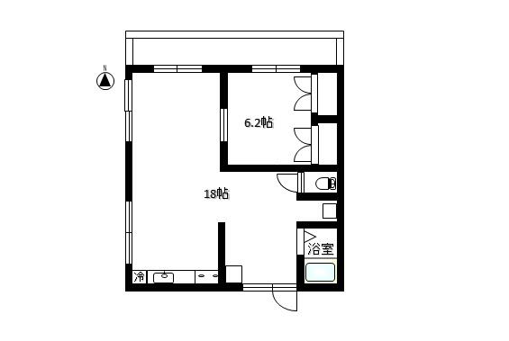
間取り
1LDK
面積
46.28㎡
交通
東北本線 古河駅 徒歩34分
築年数
1986-12
建物構造
木造
掲載日
2025年12月19日
設備・条件
トイレ
温水洗浄便座
バス・トイレ別
追焚機能
シャワー
システムキッチン
2口コンロ
収納スペース
クローゼット
シューズボックス
エアコン
室内洗濯機置場
角部屋
最上階
プロパンガス
給湯
駐輪場有(無料)
二人入居可
喫煙不可
この物件を問い合わせる
この物件を共有する
tab_inactive
URLコピー
Xで共有
LINEで送る
Instagram
所在地
物件へのお問い合わせ
キャンセル
送信 ➤