❮
花の北ハイツA棟 704
お気に入り
ログイン / 登録
arrow_drop_down
ユーザーとしてログイン
不動産仲介業者としてログイン
物件所有者としてログイン
花の北ハイツA棟 704
兵庫県 姫路市 増位新町2丁目15
❮
❯
この物件を問い合わせる
物件概要
初期費用目安
29.8万円
※目安金額通りにならない場合がありますので、必ずお問い合わせください。
【仲介手数料について】
・家賃6万円以上:一律 3万円
・家賃6万円未満:家賃の 0.5ヶ月分
家賃
6.7万円
共益費
なし
敷金 / 礼金
1ヶ月 / 2ヶ月
契約種別
普通賃貸借
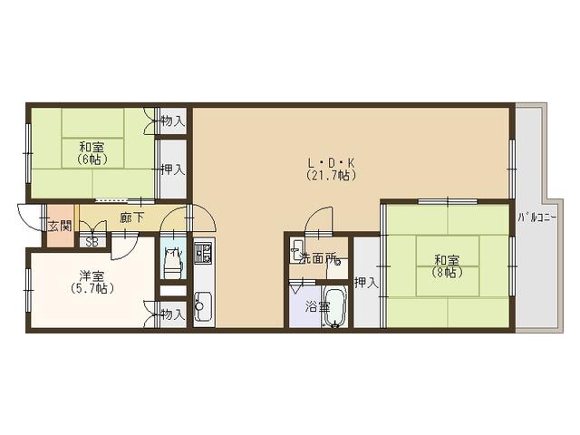
間取り
3LDK
面積
78.08㎡
交通
播但線 野里駅 徒歩5分
(駅地図)
築年数
1980-08
建物構造
鉄骨造
掲載日
2025年12月23日
設備・条件
トイレ
バス・トイレ別
シャワー
洗面所
洗面台
シャワー付洗面化粧台
システムキッチン
ガスコンロ付
食器洗浄乾燥機
収納スペース
クローゼット
洗濯機置場
室内洗濯機置場
最上階
都市ガス
給湯
エレベーター
この物件を問い合わせる
この物件を共有する
tab_inactive
URLコピー
Xで共有
LINEで送る
Instagram
所在地
物件へのお問い合わせ
キャンセル
送信 ➤