❮
S-RESIDENCE都島Lux 1006
お気に入り
ログイン / 登録
arrow_drop_down
ユーザーとしてログイン
不動産仲介業者としてログイン
物件所有者としてログイン
error
募集は終了しました
S-RESIDENCE都島Lux 1006
大阪府 大阪市 都島区都島本通4丁目11番18号
❮
❯
この物件を問い合わせる
物件概要
初期費用目安
11万円
※目安金額通りにならない場合がありますので、必ずお問い合わせください。
【仲介手数料について】
・家賃6万円以上:一律 3万円
・家賃6万円未満:家賃の 0.5ヶ月分
家賃
7万円
共益費
1万円
敷金 / 礼金
なし / なし
契約種別
普通賃貸借
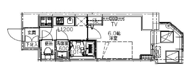
間取り
1K
面積
21.53㎡
交通
大阪市谷町線 都島駅 徒歩7分
大阪市谷町線 野江内代駅 徒歩10分
大阪環状線 桜ノ宮駅 徒歩15分
築年数
2023-07
建物構造
RC
掲載日
2025年12月2日
設備・条件
トイレ
温水洗浄便座
シャワー
浴室乾燥機
シャワー付洗面化粧台
システムキッチン
ガスコンロ付
2口コンロ
クローゼット
エアコン
光ファイバー
インターネット対応
インターネット使用料無料
洗濯機置場
オートロック
ダブルロックドア
24時間セキュリティ
火災報知器(報知器)
角部屋
都市ガス
エレベーター
宅配BOX
駐輪場有
ペット相談
この物件を問い合わせる
この物件を共有する
tab_inactive
URLコピー
Xで共有
LINEで送る
Instagram
所在地
物件へのお問い合わせ
キャンセル
送信 ➤