❮
二和ハウス 207
お気に入り
ログイン / 登録
arrow_drop_down
ユーザーとしてログイン
不動産仲介業者としてログイン
物件所有者としてログイン
error
募集は終了しました
二和ハウス 207
千葉県 船橋市 咲が丘3丁目22-4
❮
❯
この物件を問い合わせる
物件概要
初期費用目安
7.3万円
※目安金額通りにならない場合がありますので、必ずお問い合わせください。
【仲介手数料について】
・家賃6万円以上:一律 3万円
・家賃6万円未満:家賃の 0.5ヶ月分
家賃
4.3万円
共益費
なし
敷金 / 礼金
なし / なし
契約種別
普通賃貸借
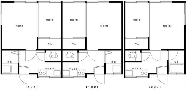
間取り
1K
面積
24.78㎡
交通
京成電鉄松戸線 二和向台駅 徒歩7分
(駅地図)
築年数
1972-03
建物構造
木造
掲載日
2025年12月2日
設備・条件
温水洗浄便座
バス・トイレ別
シャワー
洗面所独立
ガスコンロ可
エアコン
プロパンガス
プロパンガス給湯
ペット相談
喫煙不可
事務所使用可
SOHO可
この物件を問い合わせる
この物件を共有する
tab_inactive
URLコピー
Xで共有
LINEで送る
Instagram
所在地
物件へのお問い合わせ
キャンセル
送信 ➤