❮
MAXIV CROSお花茶屋 204
お気に入り
ログイン / 登録
arrow_drop_down
ユーザーとしてログイン
不動産仲介業者としてログイン
物件所有者としてログイン
error
募集は終了しました
MAXIV CROSお花茶屋 204
東京都 葛飾区 白鳥1丁目5-11
❮
❯
この物件を問い合わせる
物件概要
初期費用目安
14.8万円
※目安金額通りにならない場合がありますので、必ずお問い合わせください。
【仲介手数料について】
・家賃6万円以上:一律 3万円
・家賃6万円未満:家賃の 0.5ヶ月分
家賃
10.7万円
共益費
1.1万円
敷金 / 礼金
なし / なし
契約種別
普通賃貸借
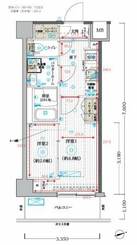
間取り
2K
面積
25.46㎡
交通
京成電鉄本線 お花茶屋駅 徒歩5分
(駅地図)
築年数
2025-06
建物構造
RC
掲載日
2025年11月15日
設備・条件
トイレ
温水洗浄便座
バス・トイレ別
浴室乾燥機
洗面所
洗面所独立
システムキッチン
ガスコンロ可
2口コンロ
収納スペース
クローゼット
エアコン
インターネット対応
洗濯機置場
室内洗濯機置場
オートロック
都市ガス
宅配BOX
ペット相談
二人入居可
この物件を問い合わせる
この物件を共有する
tab_inactive
URLコピー
Xで共有
LINEで送る
Instagram
所在地
物件へのお問い合わせ
キャンセル
送信 ➤