❮
G・Aタウン県立大学Ⅱ 206
お気に入り
ログイン / 登録
arrow_drop_down
ユーザーとしてログイン
不動産仲介業者としてログイン
物件所有者としてログイン
error
募集は終了しました
G・Aタウン県立大学Ⅱ 206
神奈川県 横須賀市 富士見町1丁目49-39
❮
❯
この物件を問い合わせる
物件概要
初期費用目安
7万円
※目安金額通りにならない場合がありますので、必ずお問い合わせください。
【仲介手数料について】
・家賃6万円以上:一律 3万円
・家賃6万円未満:家賃の 0.5ヶ月分
家賃
3.5万円
共益費
0.5万円
敷金 / 礼金
なし / なし
契約種別
普通賃貸借
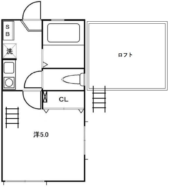
間取り
1K
面積
16.14㎡
交通
京浜急行電鉄本線 県立大学駅 徒歩7分
(駅地図)
京浜急行電鉄本線 横須賀中央駅 徒歩25分
(駅地図)
築年数
2009-02
建物構造
木造
掲載日
2025年11月20日
設備・条件
バス・トイレ別
追焚機能
浴室乾燥機
IHクッキングヒーター
収納スペース
クローゼット
冷房
エアコン
暖房
BS端子
CATV
インターネット対応
洗濯機置場
室内洗濯機置場
室内物干し
ロフト
モニター付インターホン
角部屋
給湯
この物件を問い合わせる
この物件を共有する
tab_inactive
URLコピー
Xで共有
LINEで送る
Instagram
所在地
物件へのお問い合わせ
キャンセル
送信 ➤