❮
エステムコート神戸・県庁前Ⅱ 404
お気に入り
ログイン / 登録
arrow_drop_down
ユーザーとしてログイン
不動産仲介業者としてログイン
物件所有者としてログイン
error
募集は終了しました
エステムコート神戸・県庁前Ⅱ 404
兵庫県 神戸市 中央区下山手通6丁目1-5
❮
❯
この物件を問い合わせる
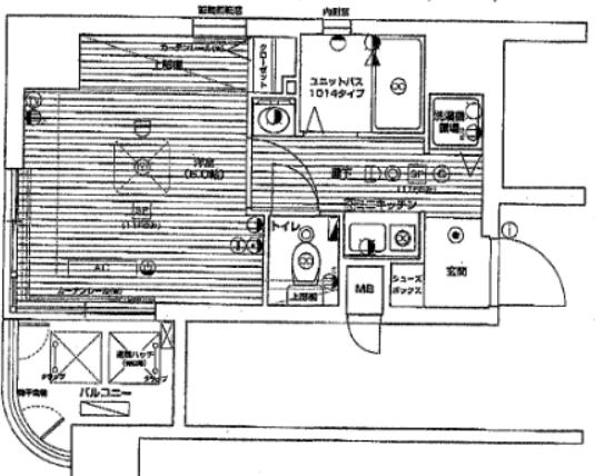
物件概要
初期費用目安
8.9万円
※目安金額通りにならない場合がありますので、必ずお問い合わせください。
【仲介手数料について】
・家賃6万円以上:一律 3万円
・家賃6万円未満:家賃の 0.5ヶ月分
家賃
5万円
共益費
0.9万円
敷金 / 礼金
なし / なし
契約種別
普通賃貸借
間取り
1K
面積
19.38㎡
交通
神戸市西神山手線 県庁前駅 徒歩4分
(駅地図)
神戸高速鉄道東西線 花隈駅 徒歩7分
(駅地図)
東海道本線 元町駅 徒歩9分
(駅地図)
築年数
2000-11
建物構造
RC
掲載日
2025年12月23日
設備・条件
バス・トイレ別
洗面所独立
全居室収納
シューズボックス
エアコン
インターネット対応
室内洗濯機置場
オートロック
モニター付インターホン
防犯カメラ
エレベーター
宅配BOX
駐輪場有(無料)
この物件を問い合わせる
この物件を共有する
tab_inactive
URLコピー
Xで共有
LINEで送る
Instagram
所在地
物件へのお問い合わせ
キャンセル
送信 ➤