❮
ときわ台Machiya 102
お気に入り
ログイン / 登録
arrow_drop_down
ユーザーとしてログイン
不動産仲介業者としてログイン
物件所有者としてログイン
error
募集は終了しました
ときわ台Machiya 102
東京都 板橋区 東新町1丁目9-5
❮
❯
この物件を問い合わせる
物件概要
初期費用目安
8.7万円
※目安金額通りにならない場合がありますので、必ずお問い合わせください。
【仲介手数料について】
・家賃6万円以上:一律 3万円
・家賃6万円未満:家賃の 0.5ヶ月分
家賃
5.7万円
共益費
なし
敷金 / 礼金
なし / なし
契約種別
普通賃貸借
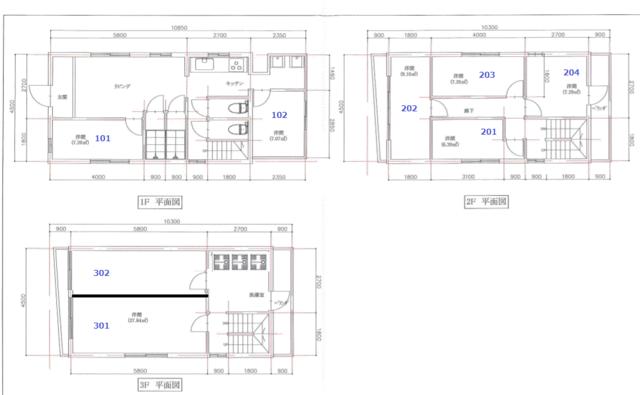
間取り
ワンルーム
面積
7.07㎡
交通
東武鉄道東上線 上板橋駅 徒歩9分
東武鉄道東上線 ときわ台駅 徒歩11分
東武鉄道東上線 中板橋駅 徒歩21分
築年数
1988-01
建物構造
RC
掲載日
2025年12月19日
設備・条件
トイレ
バス・トイレ別
シャワー
シャワールーム
システムキッチン
ガスコンロ付
冷房
エアコン
全居室エアコン
暖房
インターネット対応
インターネット使用料無料
室内洗濯機置場
照明器具
家電付
冷蔵庫
洗濯乾燥機
家具付き
ベッド
男性限定
この物件を問い合わせる
この物件を共有する
tab_inactive
URLコピー
Xで共有
LINEで送る
Instagram
所在地
物件へのお問い合わせ
キャンセル
送信 ➤