❮
スカイコートソレア新丸子 302
お気に入り
ログイン / 登録
arrow_drop_down
ユーザーとしてログイン
不動産仲介業者としてログイン
物件所有者としてログイン
error
募集は終了しました
スカイコートソレア新丸子 302
神奈川県 川崎市 中原区上丸子315
❮
❯
この物件を問い合わせる
物件概要
初期費用目安
40.5万円
※目安金額通りにならない場合がありますので、必ずお問い合わせください。
【仲介手数料について】
・家賃6万円以上:一律 3万円
・家賃6万円未満:家賃の 0.5ヶ月分
家賃
11.59万円
共益費
0.91万円
敷金 / 礼金
1ヶ月 / 1ヶ月
契約種別
定期借家
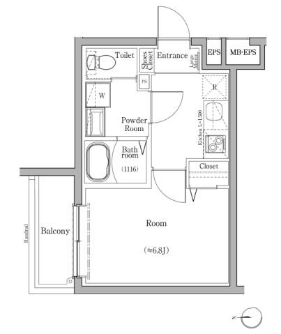
間取り
1K
面積
25.11㎡
交通
東急東横線 新丸子駅 徒歩8分
(駅地図)
東急東横線 武蔵小杉駅 徒歩14分
(駅地図)
築年数
2026-03
建物構造
RC
掲載日
2026年1月8日
設備・条件
温水洗浄便座
バス・トイレ別
浴室乾燥機
洗面所
洗面台
洗面所独立
システムキッチン
2口コンロ
IHクッキングヒーター
クローゼット
シューズボックス
エアコン
光ファイバー
インターネット使用料無料
室内洗濯機置場
室内物干し
フローリング
オートロック
モニタ付オートロック
モニター付インターホン
防犯カメラ
都市ガス
給湯
エレベーター
宅配BOX
この物件を問い合わせる
この物件を共有する
tab_inactive
URLコピー
Xで共有
LINEで送る
Instagram
所在地
物件へのお問い合わせ
キャンセル
送信 ➤