❮
ベストレジデンスあびこ 6D
お気に入り
ログイン / 登録
arrow_drop_down
ユーザーとしてログイン
不動産仲介業者としてログイン
物件所有者としてログイン
ベストレジデンスあびこ 6D
大阪府 大阪市 住吉区苅田4丁目12番28号
❮
❯
この物件を問い合わせる
物件概要
初期費用目安
6.4万円
※目安金額通りにならない場合がありますので、必ずお問い合わせください。
【仲介手数料について】
・家賃6万円以上:一律 3万円
・家賃6万円未満:家賃の 0.5ヶ月分
家賃
3.4万円
共益費
なし
敷金 / 礼金
なし / なし
契約種別
普通賃貸借
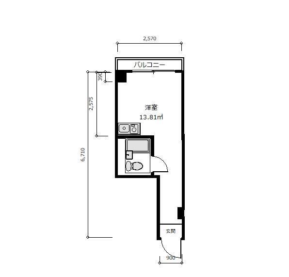
間取り
ワンルーム
面積
12.97㎡
交通
大阪市御堂筋線 あびこ駅 徒歩12分
(駅地図)
築年数
1988-03
建物構造
RC
掲載日
2025年11月27日
設備・条件
IHクッキングヒーター
エアコン
この物件を問い合わせる
この物件を共有する
tab_inactive
URLコピー
Xで共有
LINEで送る
Instagram
所在地
物件へのお問い合わせ
キャンセル
送信 ➤