❮
スカイボックス小坂 204号
お気に入り
ログイン / 登録
arrow_drop_down
ユーザーとしてログイン
不動産仲介業者としてログイン
物件所有者としてログイン
error
募集は終了しました
スカイボックス小坂 204号
大分県 豊後大野市 三重町小坂4109-143
❮
❯
この物件を問い合わせる
物件概要
初期費用目安
6.58万円
※目安金額通りにならない場合がありますので、必ずお問い合わせください。
【仲介手数料について】
・家賃6万円以上:一律 3万円
・家賃6万円未満:家賃の 0.5ヶ月分
家賃
3.58万円
共益費
なし
敷金 / 礼金
なし / なし
契約種別
普通賃貸借
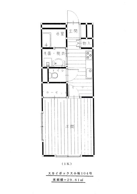
間取り
1K
面積
29.81㎡
交通
築年数
1999-06
建物構造
RC
掲載日
2025年11月18日
設備・条件
バス・トイレ別
シャワー
システムキッチン
ガスコンロ可
収納スペース
クローゼット
シューズボックス
エアコン
CATV
洗濯機置場
火災報知器(報知器)
給湯
プロパンガス給湯
駐輪場有(無料)
バイク置場有(無料)
この物件を問い合わせる
この物件を共有する
tab_inactive
URLコピー
Xで共有
LINEで送る
Instagram
所在地
物件へのお問い合わせ
キャンセル
送信 ➤