❮
シティ能見台ふれあいの街F棟 F1105
お気に入り
ログイン / 登録
arrow_drop_down
ユーザーとしてログイン
不動産仲介業者としてログイン
物件所有者としてログイン
シティ能見台ふれあいの街F棟 F1105
神奈川県 横浜市 金沢区能見台3丁目51
❮
❯
この物件を問い合わせる
物件概要
初期費用目安
57万円
※目安金額通りにならない場合がありますので、必ずお問い合わせください。
【仲介手数料について】
・家賃6万円以上:一律 3万円
・家賃6万円未満:家賃の 0.5ヶ月分
家賃
18万円
共益費
なし
敷金 / 礼金
1ヶ月 / 1ヶ月
契約種別
普通賃貸借
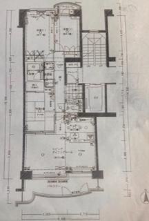
間取り
3LDK
面積
79.36㎡
交通
京浜急行電鉄本線 能見台駅 徒歩26分
(駅地図)
築年数
1991-11
建物構造
RC
掲載日
2025年10月17日
設備・条件
トイレ
トイレ未使用
温水洗浄便座
バス・トイレ別
追焚機能
シャワー
脱衣所
洗面所
洗面台
洗面所にドア
システムキッチン
独立型キッチン
キッチン未使用
ガスコンロ付
3口コンロ
グリル
収納スペース
クローゼット
シューズボックス
納戸
押入
畳コーナー
室内洗濯機置場
フローリング
フローリング張替
オートロック
最上階
高層階
上階無し
都市ガス
都市ガス給湯
エレベーター
敷地内ごみ置き場
駐輪場有
バイク置場有
ペット相談
この物件を問い合わせる
この物件を共有する
tab_inactive
URLコピー
Xで共有
LINEで送る
Instagram
所在地
物件へのお問い合わせ
キャンセル
送信 ➤