❮
リヴシティ栄 307
お気に入り
ログイン / 登録
arrow_drop_down
ユーザーとしてログイン
不動産仲介業者としてログイン
物件所有者としてログイン
error
募集は終了しました
リヴシティ栄 307
愛知県 名古屋市 中区栄5丁目
❮
❯
この物件を問い合わせる
物件概要
初期費用目安
9万円
※目安金額通りにならない場合がありますので、必ずお問い合わせください。
【仲介手数料について】
・家賃6万円以上:一律 3万円
・家賃6万円未満:家賃の 0.5ヶ月分
家賃
5.3万円
共益費
0.7万円
敷金 / 礼金
なし / なし
契約種別
普通賃貸借
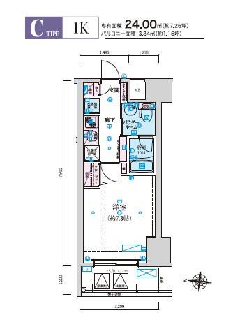
間取り
1K
面積
24㎡
交通
名古屋市名城線 矢場町駅 徒歩7分
(駅地図)
名古屋市東山線 新栄町駅 徒歩10分
(駅地図)
名鉄瀬戸線 栄町駅 徒歩11分
(駅地図)
築年数
2007-12
建物構造
RC
掲載日
2025年11月18日
設備・条件
トイレ
温水洗浄便座
バス・トイレ別
シャワー
浴室乾燥機
洗面台
システムキッチン
ガスコンロ付
2口コンロ
収納スペース
クローゼット
シューズボックス
エアコン
BS端子
CS
CATV
インターネット使用料無料
洗濯機置場
室内洗濯機置場
オートロック
モニター付インターホン
防犯カメラ
角部屋
都市ガス
エレベーター
宅配BOX
ペット相談
小型犬可
猫可
二人入居可
この物件を問い合わせる
この物件を共有する
tab_inactive
URLコピー
Xで共有
LINEで送る
Instagram
所在地
物件へのお問い合わせ
キャンセル
送信 ➤