❮
開洋館 501
お気に入り
ログイン / 登録
arrow_drop_down
ユーザーとしてログイン
不動産仲介業者としてログイン
物件所有者としてログイン
error
募集は終了しました
開洋館 501
神奈川県 横浜市 神奈川区子安通3丁目
❮
❯
この物件を問い合わせる
物件概要
初期費用目安
45万円
※目安金額通りにならない場合がありますので、必ずお問い合わせください。
【仲介手数料について】
・家賃6万円以上:一律 3万円
・家賃6万円未満:家賃の 0.5ヶ月分
家賃
12.5万円
共益費
1.5万円
敷金 / 礼金
1ヶ月 / 1ヶ月
契約種別
普通賃貸借
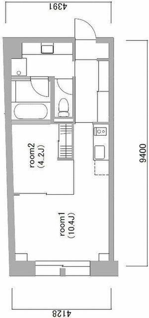
間取り
1LDK
面積
40.03㎡
交通
京浜急行電鉄本線 京急新子安駅 徒歩6分
(駅地図)
京浜東北・根岸線 新子安駅 徒歩9分
(駅地図)
京浜急行電鉄本線 生麦駅 徒歩11分
(駅地図)
築年数
2011-02
建物構造
RC
掲載日
2025年10月17日
設備・条件
温水洗浄便座
バス・トイレ別
追焚機能
浴室乾燥機
洗面所独立
システムキッチン
ガスコンロ付
クローゼット
シューズボックス
ビルトインエアコン
インターネット対応
室内洗濯機置場
室内物干し
フローリング
照明器具
オートロック
モニター付インターホン
ディンプルキー
角部屋
都市ガス
給湯
エレベーター
宅配BOX
駐輪場有(無料)
バイク置場有(月額 5,500円)
喫煙不可
法人契約希望
この物件を問い合わせる
この物件を共有する
tab_inactive
URLコピー
Xで共有
LINEで送る
Instagram
所在地
物件へのお問い合わせ
キャンセル
送信 ➤