❮
グランディア大手町壱番館 1501
お気に入り
ログイン / 登録
arrow_drop_down
ユーザーとしてログイン
不動産仲介業者としてログイン
物件所有者としてログイン
グランディア大手町壱番館 1501
愛媛県 松山市 宮田町6-2
❮
❯
この物件を問い合わせる
物件概要
初期費用目安
39万円
※目安金額通りにならない場合がありますので、必ずお問い合わせください。
【仲介手数料について】
・家賃6万円以上:一律 3万円
・家賃6万円未満:家賃の 0.5ヶ月分
家賃
12万円
共益費
なし
敷金 / 礼金
2ヶ月 / なし
契約種別
普通賃貸借
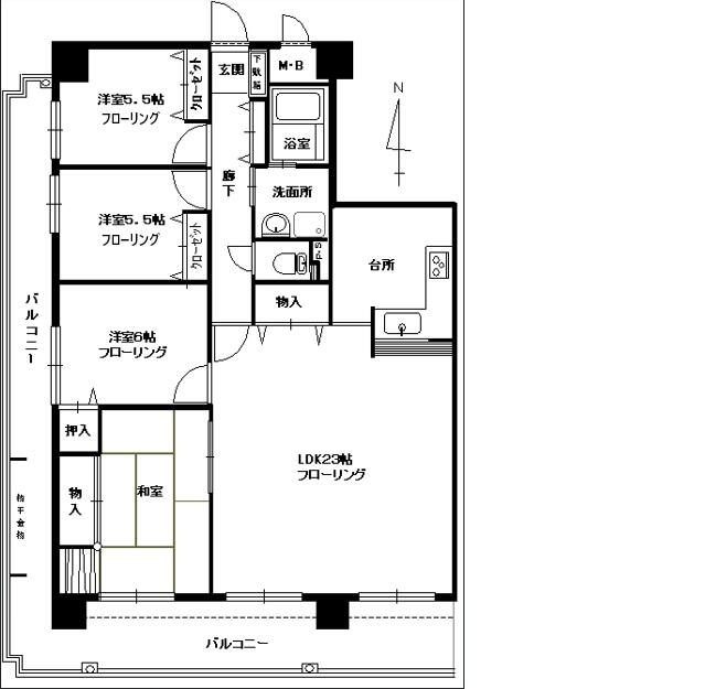
間取り
4LDK
面積
97.46㎡
交通
伊予鉄道環状線 大手町駅 徒歩3分
伊予鉄道高浜線 大手町駅 徒歩4分
予讃線 松山駅 徒歩6分
築年数
1995-07
建物構造
RC
掲載日
2025年11月18日
設備・条件
トイレ
バス・トイレ別
洗面所独立
システムキッチン
ガスコンロ付
収納スペース
全居室収納
クローゼット
シューズボックス
室内洗濯機置場
フローリング
全居室フローリング
オートロック
モニタ付オートロック
モニター付インターホン
ダブルロックドア
ディンプルキー
角部屋
最上階
都市ガス
給湯
エレベーター
宅配BOX
駐輪場有(無料)
バイク置場有(無料)
この物件を問い合わせる
この物件を共有する
tab_inactive
URLコピー
Xで共有
LINEで送る
Instagram
所在地
物件へのお問い合わせ
キャンセル
送信 ➤