❮
旭ハイツ 303
お気に入り
ログイン / 登録
arrow_drop_down
ユーザーとしてログイン
不動産仲介業者としてログイン
物件所有者としてログイン
旭ハイツ 303
高知県 高知市 北端町42-1
❮
❯
この物件を問い合わせる
物件概要
初期費用目安
20.6万円
※目安金額通りにならない場合がありますので、必ずお問い合わせください。
【仲介手数料について】
・家賃6万円以上:一律 3万円
・家賃6万円未満:家賃の 0.5ヶ月分
家賃
3.2万円
共益費
なし
敷金 / 礼金
なし / 4.5ヶ月
契約種別
普通賃貸借
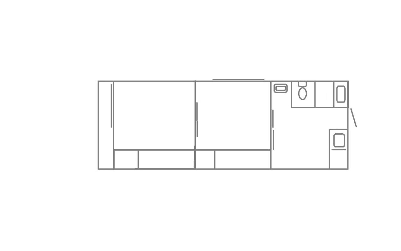
間取り
2DK
面積
33.5㎡
交通
土讃線 旭駅 徒歩2分
(駅地図)
築年数
1979-05
建物構造
鉄骨造
掲載日
2025年11月18日
設備・条件
トイレ
バス・トイレ別
シャワー
洗面台
ガスキッチン
押入
エアコン
全居室フローリング
照明器具
洗濯機
冷蔵庫
角部屋
駐輪場有(無料)
バイク置場有(無料)
ペット不可
楽器不可
喫煙不可
保証人不要
この物件を問い合わせる
この物件を共有する
tab_inactive
URLコピー
Xで共有
LINEで送る
Instagram
所在地
物件へのお問い合わせ
キャンセル
送信 ➤