❮
ベルグレード浅草DUE 703
お気に入り
ログイン / 登録
arrow_drop_down
ユーザーとしてログイン
不動産仲介業者としてログイン
物件所有者としてログイン
error
募集は終了しました
ベルグレード浅草DUE 703
東京都 台東区 浅草5丁目36-9
❮
❯
この物件を問い合わせる
物件概要
初期費用目安
28.4万円
※目安金額通りにならない場合がありますので、必ずお問い合わせください。
【仲介手数料について】
・家賃6万円以上:一律 3万円
・家賃6万円未満:家賃の 0.5ヶ月分
家賃
11.7万円
共益費
1万円
敷金 / 礼金
なし / 1ヶ月
契約種別
普通賃貸借
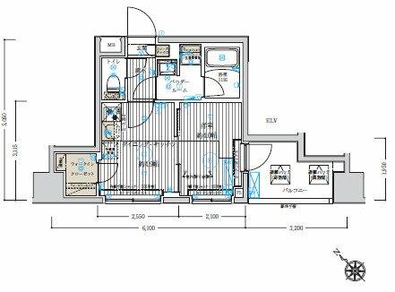
間取り
1DK
面積
25.8㎡
交通
築年数
2025-02
建物構造
RC
掲載日
2025年10月10日
設備・条件
トイレ
温水洗浄便座
バス・トイレ別
浴室乾燥機
洗面所
洗面所独立
システムキッチン
ガスコンロ可
2口コンロ
収納スペース
クローゼット
エアコン
インターネット対応
インターネット使用料無料
洗濯機置場
フローリング
オートロック
モニタ付オートロック
モニター付インターホン
都市ガス
エレベーター
宅配BOX
ペット相談
二人入居可
この物件を問い合わせる
この物件を共有する
tab_inactive
URLコピー
Xで共有
LINEで送る
Instagram
所在地
物件へのお問い合わせ
キャンセル
送信 ➤