❮
レピドール福田I 508
お気に入り
ログイン / 登録
arrow_drop_down
ユーザーとしてログイン
不動産仲介業者としてログイン
物件所有者としてログイン
error
募集は終了しました
レピドール福田I 508
東京都 江東区 南砂2丁目37-1
❮
❯
この物件を問い合わせる
物件概要
初期費用目安
63万円
※目安金額通りにならない場合がありますので、必ずお問い合わせください。
【仲介手数料について】
・家賃6万円以上:一律 3万円
・家賃6万円未満:家賃の 0.5ヶ月分
家賃
19万円
共益費
1万円
敷金 / 礼金
1ヶ月 / 1ヶ月
契約種別
普通賃貸借
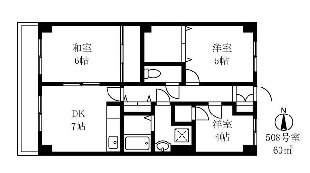
間取り
3DK
面積
60㎡
交通
東京地下鉄東西線 南砂町駅 徒歩7分
東京地下鉄東西線 東陽町駅 徒歩10分
東京地下鉄東西線 木場駅 徒歩23分
築年数
1990-03
建物構造
RC
掲載日
2025年11月26日
設備・条件
温水洗浄便座
バス・トイレ別
追焚機能
洗面所独立
収納スペース
シューズボックス
冷房
エアコン
暖房
室内洗濯機置場
フローリング
オートロック
モニター付インターホン
エレベーター
駐輪場有(無料)
バイク置場有
この物件を問い合わせる
この物件を共有する
tab_inactive
URLコピー
Xで共有
LINEで送る
Instagram
所在地
物件へのお問い合わせ
キャンセル
送信 ➤