❮
ロジェ今福鶴見 0906
お気に入り
ログイン / 登録
arrow_drop_down
ユーザーとしてログイン
不動産仲介業者としてログイン
物件所有者としてログイン
error
募集は終了しました
ロジェ今福鶴見 0906
大阪府 大阪市 城東区今福東1丁目14-3.
❮
❯
この物件を問い合わせる
物件概要
初期費用目安
9.5万円
※目安金額通りにならない場合がありますので、必ずお問い合わせください。
【仲介手数料について】
・家賃6万円以上:一律 3万円
・家賃6万円未満:家賃の 0.5ヶ月分
家賃
5.9万円
共益費
0.6万円
敷金 / 礼金
なし / なし
契約種別
普通賃貸借
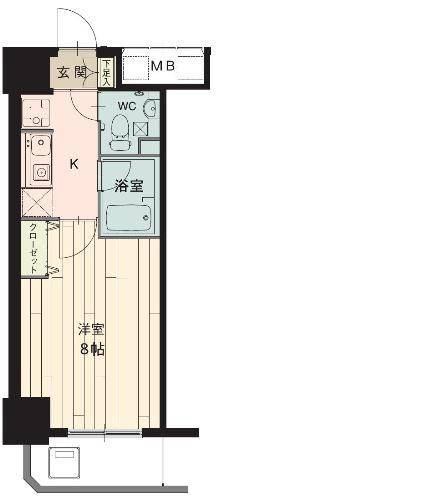
間取り
1K
面積
25.8㎡
交通
築年数
2004-07
建物構造
SRC
掲載日
2025年11月19日
設備・条件
トイレ
バス・トイレ別
シャワー
システムキッチン
IHクッキングヒーター
収納スペース
クローゼット
シューズボックス
エアコン
CS
CATV
光ファイバー
室内洗濯機置場
フローリング
オートロック
モニター付インターホン
ダブルロックドア
給湯
オール電化
エレベーター
宅配BOX
駐輪場有
この物件を問い合わせる
この物件を共有する
tab_inactive
URLコピー
Xで共有
LINEで送る
Instagram
所在地
物件へのお問い合わせ
キャンセル
送信 ➤