❮
サンライフ栄B 102
お気に入り
ログイン / 登録
arrow_drop_down
ユーザーとしてログイン
不動産仲介業者としてログイン
物件所有者としてログイン
error
募集は終了しました
サンライフ栄B 102
神奈川県 横浜市 栄区笠間2丁目15-44
❮
❯
この物件を問い合わせる
物件概要
初期費用目安
29万円
※目安金額通りにならない場合がありますので、必ずお問い合わせください。
【仲介手数料について】
・家賃6万円以上:一律 3万円
・家賃6万円未満:家賃の 0.5ヶ月分
家賃
6.5万円
共益費
なし
敷金 / 礼金
2ヶ月 / 1ヶ月
契約種別
普通賃貸借
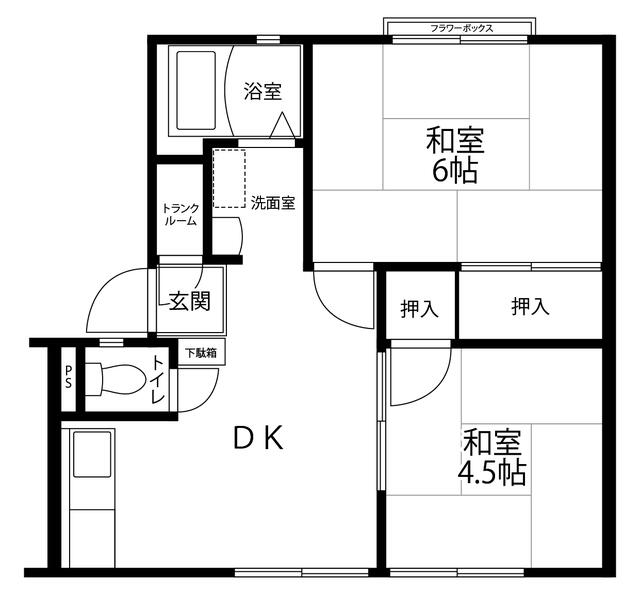
間取り
2DK
面積
39.15㎡
交通
東海道本線 大船駅 徒歩7分
根岸線 大船駅 徒歩7分
築年数
1991-02
建物構造
軽量鉄骨造
掲載日
2026年1月8日
設備・条件
トイレ
バス・トイレ別
オートバス
洗面台
システムキッチン
ガスコンロ可
収納スペース
全居室収納
シューズボックス
CATVインターネット
インターネット使用料無料
室内洗濯機置場
都市ガス
給湯
この物件を問い合わせる
この物件を共有する
tab_inactive
URLコピー
Xで共有
LINEで送る
Instagram
所在地
物件へのお問い合わせ
キャンセル
送信 ➤