❮
スカイピアさがみ野2C 102
お気に入り
ログイン / 登録
arrow_drop_down
ユーザーとしてログイン
不動産仲介業者としてログイン
物件所有者としてログイン
error
募集は終了しました
スカイピアさがみ野2C 102
神奈川県 座間市 東原3丁目4-43
❮
❯
この物件を問い合わせる
物件概要
初期費用目安
15万円
※目安金額通りにならない場合がありますので、必ずお問い合わせください。
【仲介手数料について】
・家賃6万円以上:一律 3万円
・家賃6万円未満:家賃の 0.5ヶ月分
家賃
2.1万円
共益費
0.3万円
敷金 / 礼金
4ヶ月 / なし
契約種別
定期借家
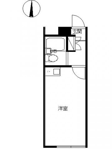
間取り
1K
面積
13.5㎡
交通
相模鉄道本線 さがみ野駅 徒歩10分
(駅地図)
相模鉄道本線 かしわ台駅 徒歩25分
(駅地図)
相模鉄道本線 相模大塚駅 徒歩25分
(駅地図)
築年数
1987-10
建物構造
木造
掲載日
2025年12月10日
設備・条件
システムキッチン
IHクッキングヒーター
シューズボックス
エアコン
CATV
光ファイバー
ロフト
照明器具
プロパンガス
給湯
コインランドリー
この物件を問い合わせる
この物件を共有する
tab_inactive
URLコピー
Xで共有
LINEで送る
Instagram
所在地
物件へのお問い合わせ
キャンセル
送信 ➤