❮
ハイツFK相模大野 402
お気に入り
ログイン / 登録
arrow_drop_down
ユーザーとしてログイン
不動産仲介業者としてログイン
物件所有者としてログイン
ハイツFK相模大野 402
神奈川県 相模原市 南区相模大野7丁目21
❮
❯
この物件を問い合わせる
物件概要
初期費用目安
29.4万円
※目安金額通りにならない場合がありますので、必ずお問い合わせください。
【仲介手数料について】
・家賃6万円以上:一律 3万円
・家賃6万円未満:家賃の 0.5ヶ月分
家賃
8.3万円
共益費
0.5万円
敷金 / 礼金
2ヶ月 / なし
契約種別
普通賃貸借
間取り
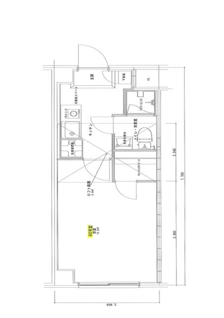
1K
面積
22.7㎡
交通
小田急電鉄小田原線 相模大野駅 徒歩4分
(駅地図)
小田急電鉄江ノ島線 相模大野駅 徒歩4分
(駅地図)
小田急電鉄江ノ島線 東林間駅 徒歩17分
(駅地図)
築年数
1986-04
建物構造
RC
掲載日
2026年3月18日
設備・条件
トイレ
バス・トイレ別
シャワー
シャワールーム
洗面所
洗面台
IHクッキングヒーター
収納スペース
クローゼット
エアコン
CATV
室内洗濯機置場
フローリング
ロフト
モニター付インターホン
給湯
エレベーター
コインランドリー
駐輪場有(無料)
バイク置場有(月額 2,500円)
この物件を問い合わせる
この物件を共有する
tab_inactive
URLコピー
Xで共有
LINEで送る
Instagram
所在地
物件へのお問い合わせ
キャンセル
送信 ➤