❮
TLRレジデンス町田 1401
お気に入り
ログイン / 登録
arrow_drop_down
ユーザーとしてログイン
不動産仲介業者としてログイン
物件所有者としてログイン
error
募集は終了しました
TLRレジデンス町田 1401
東京都 町田市 原町田5丁目
❮
❯
この物件を問い合わせる
物件概要
初期費用目安
25.6万円
※目安金額通りにならない場合がありますので、必ずお問い合わせください。
【仲介手数料について】
・家賃6万円以上:一律 3万円
・家賃6万円未満:家賃の 0.5ヶ月分
家賃
10.3万円
共益費
1万円
敷金 / 礼金
なし / 1ヶ月
契約種別
普通賃貸借
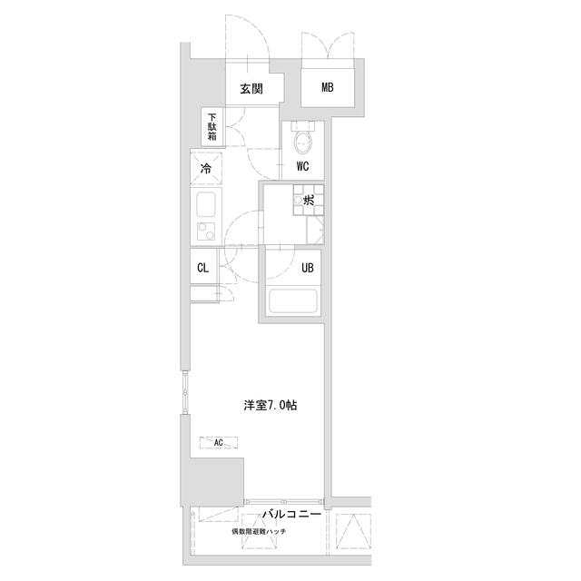
間取り
1K
面積
25.72㎡
交通
小田急電鉄小田原線 町田駅 徒歩8分
横浜線 町田駅 徒歩8分
築年数
2022-02
建物構造
RC
掲載日
2025年10月20日
設備・条件
温水洗浄便座
バス・トイレ別
浴室乾燥機
洗面台
クローゼット
シューズボックス
エアコン
インターネット対応
インターネット使用料無料
洗濯機置場
フローリング
照明器具
オートロック
モニター付インターホン
ダブルロックドア
都市ガス
給湯
エレベーター
宅配BOX
この物件を問い合わせる
この物件を共有する
tab_inactive
URLコピー
Xで共有
LINEで送る
Instagram
所在地
物件へのお問い合わせ
キャンセル
送信 ➤