❮
S-RESIDENCE堺湊駅前azure 1307
お気に入り
ログイン / 登録
arrow_drop_down
ユーザーとしてログイン
不動産仲介業者としてログイン
物件所有者としてログイン
S-RESIDENCE堺湊駅前azure 1307
大阪府 堺市 堺区出島海岸通1丁15番12
❮
❯
この物件を問い合わせる
物件概要
初期費用目安
17.2万円
※目安金額通りにならない場合がありますので、必ずお問い合わせください。
【仲介手数料について】
・家賃6万円以上:一律 3万円
・家賃6万円未満:家賃の 0.5ヶ月分
家賃
6.1万円
共益費
1万円
敷金 / 礼金
なし / 1ヶ月
契約種別
普通賃貸借
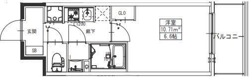
間取り
1K
面積
22.27㎡
交通
南海電鉄南海本線 湊駅 徒歩2分
(駅地図)
阪堺電気軌道阪堺線 御陵前駅 徒歩12分
(駅地図)
築年数
2025-09
建物構造
RC
掲載日
2025年11月27日
設備・条件
トイレ
温水洗浄便座
バス・トイレ別
シャワー
浴室乾燥機
洗面所
洗面所独立
シャワー付洗面化粧台
システムキッチン
ガスコンロ付
2口コンロ
クローゼット
シューズボックス
エアコン
24時間換気システム
BS端子
CS
インターネット対応
インターネット使用料無料
洗濯機置場
室内洗濯機置場
オートロック
モニター付インターホン
都市ガス
給湯
都市ガス給湯
エレベーター
宅配BOX
常時ゴミ出し可能
ペット相談
小型犬可
猫可
この物件を問い合わせる
この物件を共有する
tab_inactive
URLコピー
Xで共有
LINEで送る
Instagram
所在地
物件へのお問い合わせ
キャンセル
送信 ➤